🏢 Малка модерна жилищна сграда на отлична локация в ж.к. „Банишора“
Нова бутикова жилищна сграда, разположена на един от най-комуникативните булеварди в района – бул. „Сливница“.
📍 Локация
Имотът се намира на изключително комуникативно място. На пешеходно разстояние са:
🚇 Метростанция „Лъвов мост“
🛣️ Бул. „Сливница“
🚌 Автобуси: 11, 77, 82, 86, 101, 309, 310
🚎 Тролеи: 1, 5, 6, 7, 60, 74
🛒 Супермаркети
🏫 14 СУ „Проф. д-р Асен Златаров“
🎓 НПГПТО „М. В. Ломоносов“
🏗️ Проектирана с внимание към детайла и дългосрочния комфорт
🪟 Екстериор и премиум дограма
Висококачествено остъкляване за максимален комфорт и енергийна ефективност:
• Профилна система: алуминиева дограма Reynaers, система CS 77 (ширина 68 мм) с канал за PVC обков
• Цвят: RAL 7016 мат
• Стъклопакет (44 мм): троен стъклопакет, съставен от:
▪️ 4 мм 4 Seasons (всесезонно стъкло)
▪️ 4 мм Planibel Clearlite
▪️ 4 мм IPlus Top (нискоемисийно стъкло)
❄️🔥 Климатизация и инсталации
• Отопление и охлаждане: климатична система тип мултисплит
• Разпределение: заложени тръбни трасета до вътрешните тела в спалните и дневните помещения
• Проектиране: проектите в част ОВК и ВиК се изпълняват от водеща инженерна фирма
🔐 Сигурност и входни врати
🚪 Входни врати към стълбището: алуминиеви фалцови врати
🚪 Входни врати към асансьора: алуминиеви безфалцови врати
🔇 Акустичен проект и шумоизолация
Професионални системи от DECIBEL, осигуряващи максимален комфорт и спокойствие:
• Защита от ударен шум – мембрана DPACT, монтирана под подовата замазка във всеки обект
• Стенна изолация – високотехнологична система MUTE SYSTEM 63, еталон за шумоизолация на преградни стени
🛗 Асансьори и техническа поддръжка
Избран е партньор с фокус върху надеждността и бързия сервиз.
🛗 Пътнически асансьор – електровъжен, капацитет 630 кг (8 лица)
🚗 Автомобилен подемник – хидравличен, товароподемност 3200 кг
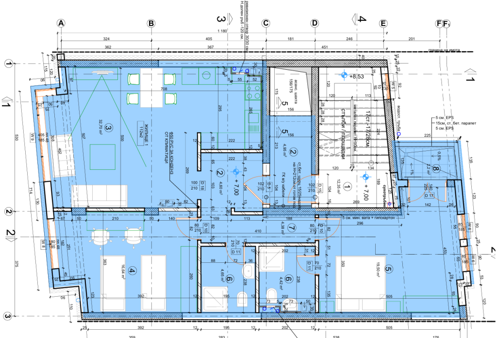
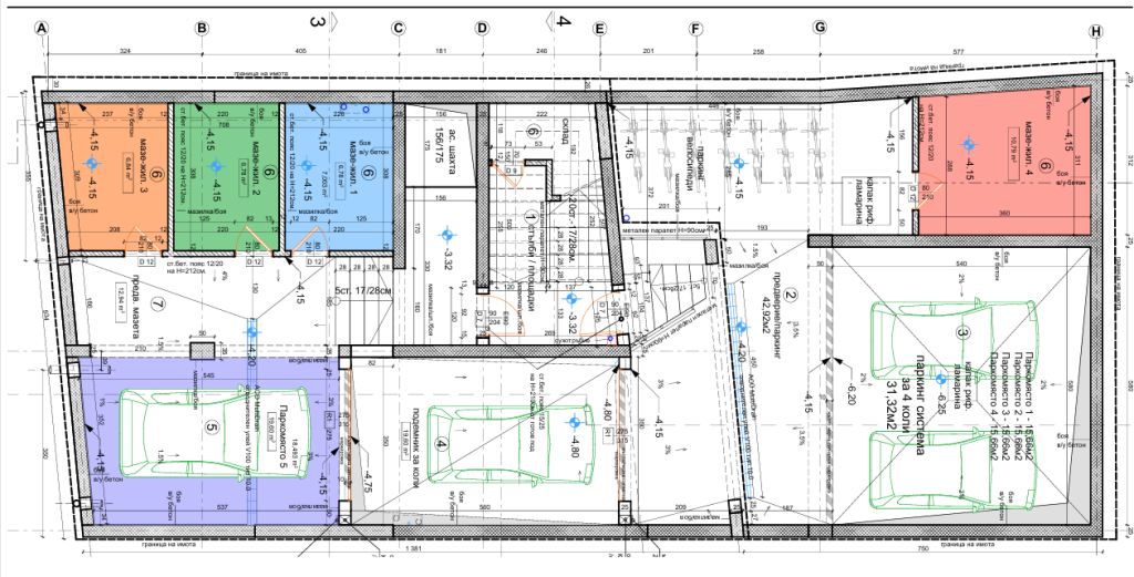
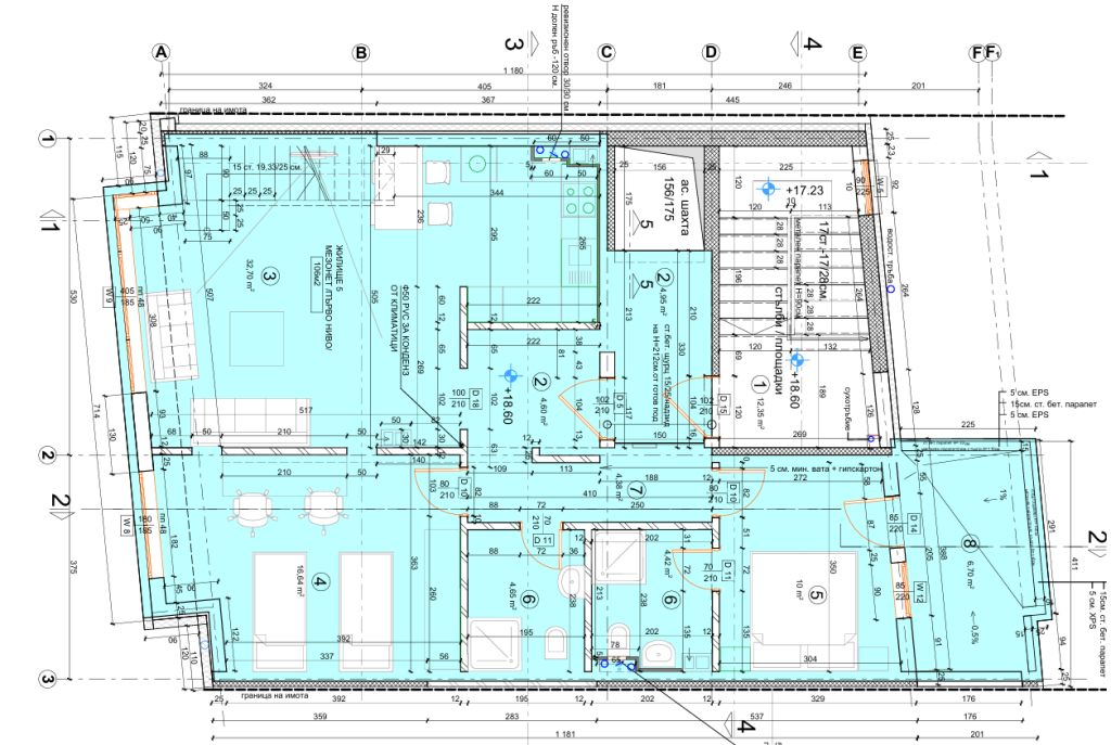
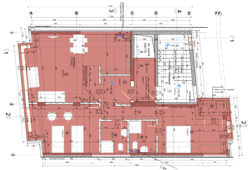
🏠 Разпределение и възможности
В сградата се предлагат:
🏡 тристайни апартаменти
🏡 мезонет
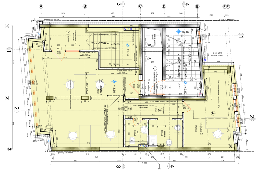
🏢 офис – 263,41 кв.м
📊 Общо: 6 функционални обекта
📐 Площи: от 133,21 кв.м до 244,44 кв.м
🏢 Партер: офис и паркоместа
☀️ Етажи 2–6: светли жилища с правилни форми
🚗 Подземни паркоместа
🌡️ Комфорт и енергийна ефективност
🏢 Общи части и интериорен дизайн
Материали:
• Фоайе и стълбища, изпълнени с луксозен италиански гранитогрес
• Външните части са изцяло съобразени с модерната архитектурна визия на сградата
🔑 Степен на завършеност и контрол на достъпа
🏠 Апартаментите се предават на фаза „до ключ“
🔌 Изборът на електрическите ключове и контакти е оставен на индивидуалното предпочитание на клиентите.
📟 Контрол на достъпа: в процес на проектиране и договаряне е съвременна домофонна и звънчева система.
💳 Гъвкави схеми на плащане
🏦 Възможност за покупка чрез банков кредит
Тъй като сградата е достигнала АКТ 14, при покупка със собствени средства е възможна следната схема на плащане:
📊 Схема на плащане:
60% / 20% / 20%
⏳ Срокове на завършване
🏗 Акт 14 (груб строеж): март 2026 г.
🛠 Акт 15 (завършени СМР): юли 2026 г.
📜 Акт 16 (разрешение за ползване): декември 2026 г.
За огледи и повече информация: Петър 0888870718
Ако съм зает и не Ви отговоря, моля позвънете пак или изпратете запитване по e-mail:
stoimenovpetr69@gmail.com
Разгледайте нашите Анализи за Имотния Пазар тук: Начало – Делта 3 Имотни Анализи – Актуална информация












